EUROKERA

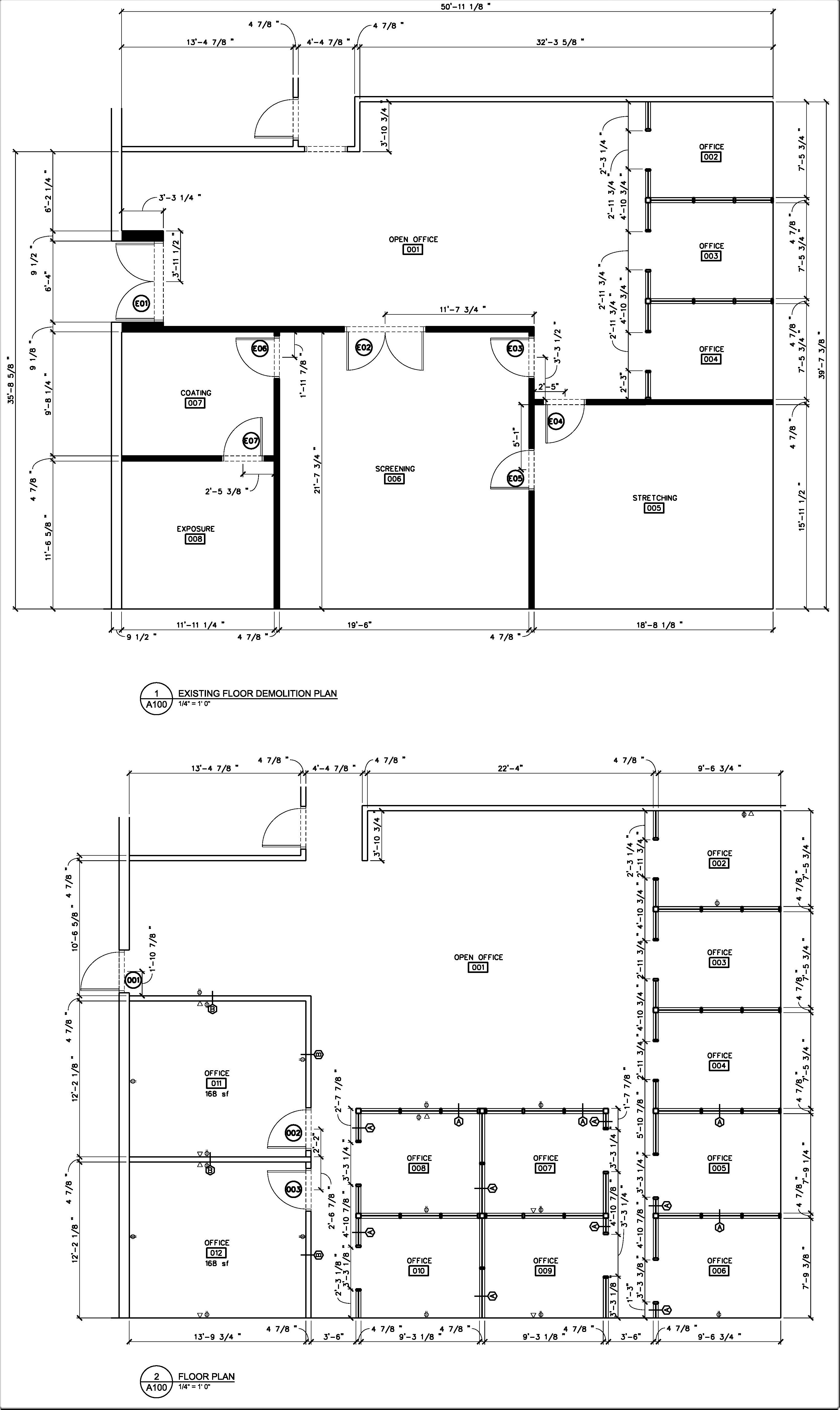
Office Renovation and Code Analysis

Eurokera is a global leader in the manufacture of glass-ceramic plates. They commissioned Context Design Group to perform a code analysis and design renovations at their Laurens, SC plant. Through our team’s exhaustive assessment of their existing 172,000SF production and operations facility, Eurokera was able to establish a revised facility masterplan.

 

Due to the sensitive manufacturing process and exact tolerances, our experience in Clean Room design was of special value. Extreme temperatures used in the creation and manipulation of the glass-ceramic raw material necessitated provisions for fire rated walls and separations. The client also requested additional storage space and as such, we supplied the requisite design services for this 20,000SF expansion and its impact both functionally and aesthetically on the existing building.

 

Additionally, our team was asked to design the renovation of a manufacturing area to become office spaces. The extreme differences in uses meant that this area needed to be largely gutted and rebuilt with finishes and construction to match the existing surroundings.  Where applicable, spaces and routes were designed to be ADA compliant. Ultimately, 1200SF was renovated to provide individual offices for eight employees including two manager level spaces.