SELZER

Site Selection, Planning, & Design

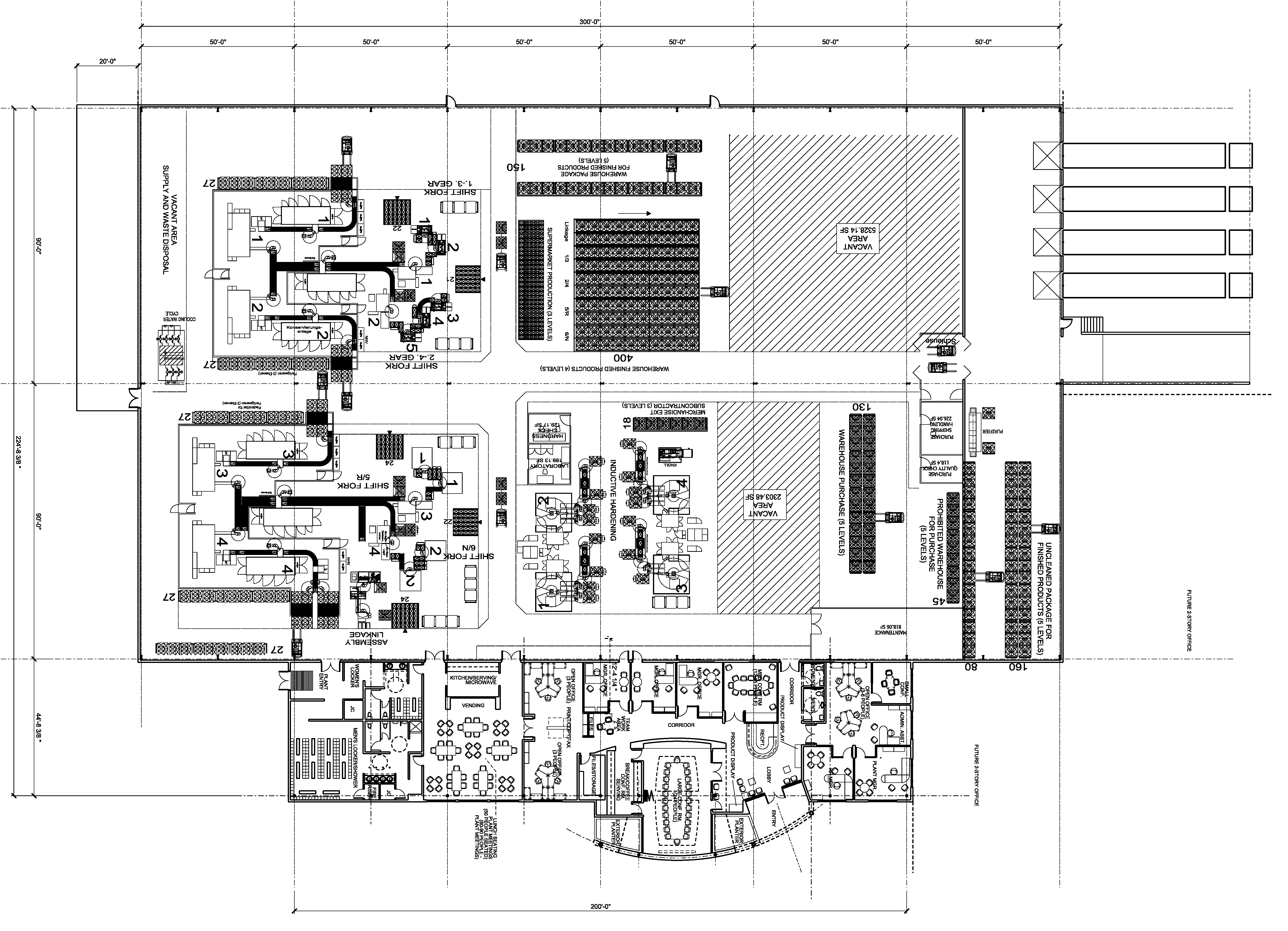
Selzer Fertigungstechnik GmbH & Co. KG formed a contract with Context Design Group in 2008 to assist them with the development and implementation of a new process facility. Our team helped the client in the exhaustive search for a site to locate their first US Plant and North American Headquarters. Ultimately, the decision was made to locate the 65,000SF facility (with an additional 195,000SF designed expansion) in Auburn, Alabama. Our analysis of differing infrastructures, site quality, and incentives was vital in determining the best fit for Selzer. As Owner’s Representatives, our position and experience ensured the client’s expectations were met or exceeded per relevant construction industry standards. Previous projects with international firms and our intimate knowledge of their lean philosophies allowed us to seamlessly team with Ingenics Corp. to further refine logistical requirements for Selzer.

 

Context Design also created a custom solution that provided a 10,000SF office to supplement the process area.  Highlights of the Class “A” space include but are not limited to a highly stylized façade and vestibule, 4 separate meeting areas that can collectively serve 135 employees, individual managerial offices supplemented by open office areas, multiple product displays, and integral planters. Aesthetically speaking, the internal use adjacencies and circulation are utilized and functionally interwoven with the sophisticated design solution.