Programming and Conceptual Design
Context Design Group performed Programming sessions and produced conceptual design ideas for IFA Rotorion, a German-based company developing and manufacturing driveshafts for the automotive market located in Charleston, SC. The programming process involved derivation of clear goals for equipment and facility requirements that coincided with future production volume estimates. CDG then developed conceptual ideas for expanding the existing facility to meet these goals and provide a more efficient process flow.
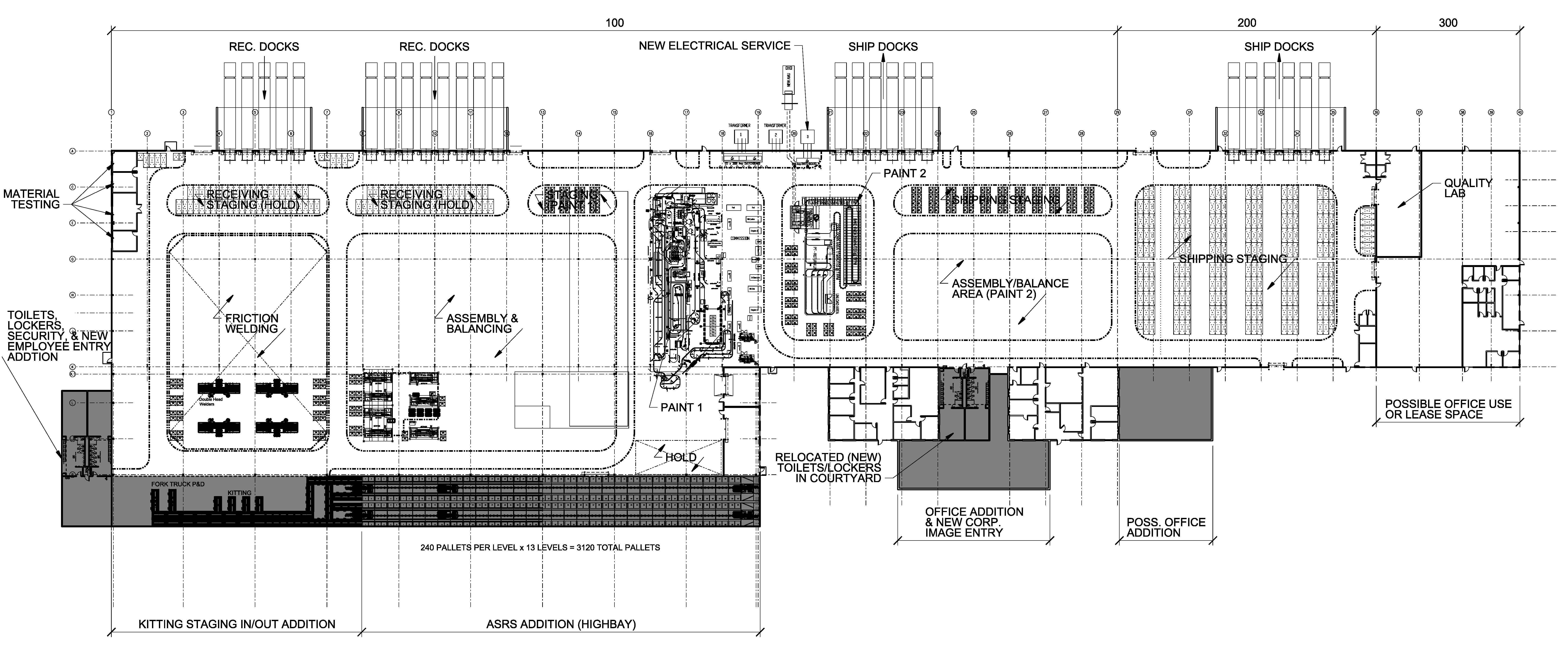
Through the Programming process, CDG gathered information from all departments of the company in order to produce the future goals of the facility and production. CDG also delved into each step of the current manufacturing process and produced flow diagrams while helping to streamline the process steps in order to arrive at a more efficient process flow. CDG was able to focus in on the primary areas (Safety, Corporate Image, and Logistics) that the company wished to alter and strengthen as future production increased. This Programming process produced the wealth of information needed by the company in order to assess their future needs and for CDG to develop conceptual design ideas for future expansion.
CDG developed a future overall production layout of the existing facility utilizing all future equipment additions and planning for added production programs. This layout involved Office renovations in response to the need for a stronger corporate image by creating a new entry/lobby area in order to focus on the company’s values and history. Due to the need to keep a large inventory of finished product on-site and the heavy volume of incoming material with increased production, CDG developed some forward-thinking ideas by incorporating high density automated storage systems to support growth with minimal expansion of the building required. These included an ASRS (automated storage retrieval system) with integrated kitting areas that tie directly into incoming material flow and outgoing product flow.
Through these exercises completed by CDG, IFA Rotorion was able to plan future facility upgrades accordingly in order to sync with their future production volumes. The company was also able to re-think some of their current process layouts and make better use of the current facility structure for their present needs.